
A feltüntetett bruttó árak tartalmazzák az áfát.
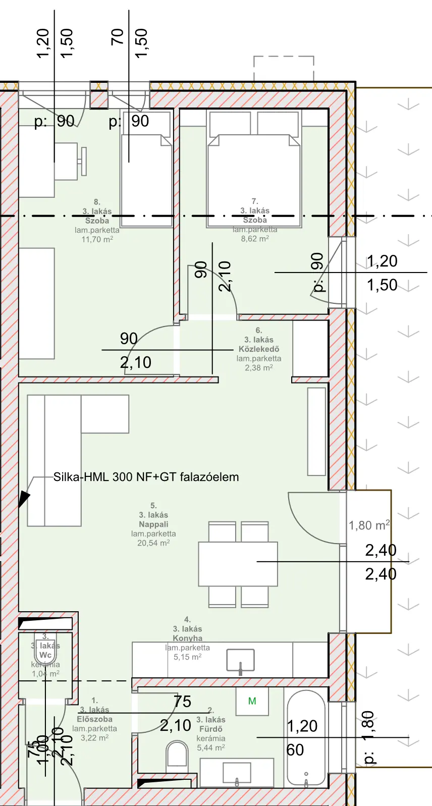
Lakás B3
Csillagfény Lakópark

Földszinti, világos 2 szobás ingatlan két mosdóval. Csendes, biztonságos és zöld környezet, kiváló elrendezés, modern felszereltség. Kényelmes életvitelhez vagy akár befektetésnek is tökéletes választás!
| Szint | Helyiség | Mért terület |
|---|---|---|
| 0. szint | Előszoba | 3,22 ㎡ |
| 0. szint | Fürdő | 5,44 ㎡ |
| 0. szint | WC | 1,04 ㎡ |
| 0. szint | Konyha | 5,15 ㎡ |
| 0. szint | Nappali | 20,54 ㎡ |
| 0. szint | Közlekedő | 2,38 ㎡ |
| 0. szint | Szoba | 8,62 ㎡ |
| 0. szint | Szoba | 11,70 ㎡ |
Össz terület:
58,09 ㎡ (nettó)
Ár:
54,77 M Ft
Lakásokhoz opcionálisan vásárolható 3㎡-es tároló
1 350 000 Ft-os áronLakásokhoz opcionálisan vásárolható saját parkolóhely
1 530 000 Ft-os áronLakásokhoz opcionálisan elektromos autó töltőállomás kiépítése igényelhető - egyedi ajánlat alapján
Ez a lakás foglalt
→ ugrás a lakásválasztóhozTovábbi lakások
Ismerje meg a Csillagfény Lakópark egyedi adottságait, valamint lakásaink legfontosabb tulajdonságait.
Bemutató megtekintése
Örömmel tölt el bennünket hogy bemutathatjuk épülő lakóparkunkat! Kollégánk szívesen válaszol bármely felmerülő kérdésre. Keressék bizalommal az alábbi elérhetőségeken, vagy a kapcsolat űrlap kitöltésével.

Apró Renáta
Értékesítő kolléga