
A feltüntetett bruttó árak tartalmazzák az áfát.
Lakás B7
Csillagfény Lakópark

Eladó első emeleti lakás zárt lakóparkban, napfényes tágas nappalival és egy hálószobával. A kellemes klímáról energiatakarékos multi klíma rendszer gondoskodik. Kényelmes, korszerű megoldások egy jól élhető térben – egyedülállóknak vagy pároknak.
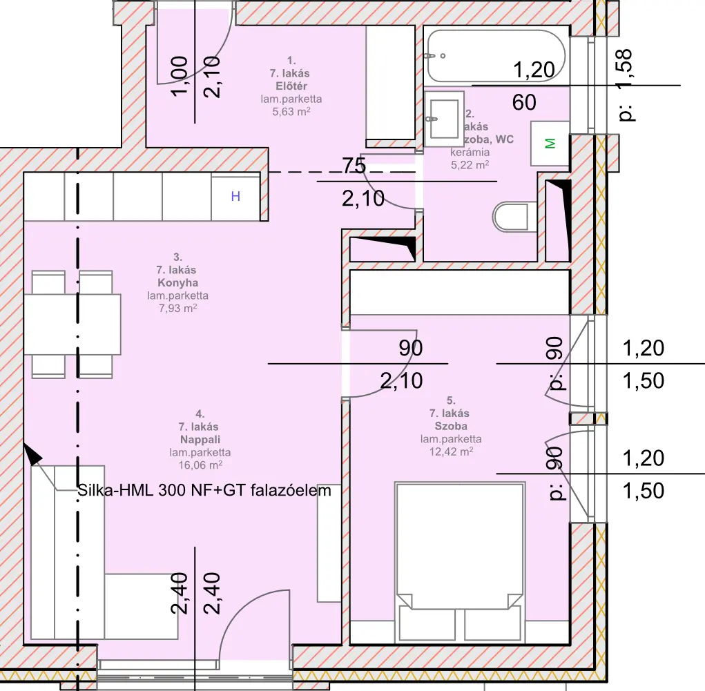
| Szint | Helyiség | Mért terület |
|---|---|---|
| 1. szint | Előtér | 5,63 ㎡ |
| 1. szint | Fürdőszoba, WC | 5,22 ㎡ |
| 1. szint | Konyha | 7,93 ㎡ |
| 1. szint | Nappali | 16,06 ㎡ |
| 1. szint | Szoba | 12,42 ㎡ |
Össz terület:
47,26 ㎡ (nettó)
Ár:
45,80 M Ft
Lakásokhoz opcionálisan vásárolható 3㎡-es tároló
1 350 000 Ft-os áronLakásokhoz opcionálisan vásárolható saját parkolóhely
1 530 000 Ft-os áronLakásokhoz opcionálisan elektromos autó töltőállomás kiépítése igényelhető - egyedi ajánlat alapján
Ez a lakás elérhető
→ ugrás a kapcsolatfelvételhezTovábbi lakások
Ismerje meg a Csillagfény Lakópark egyedi adottságait, valamint lakásaink legfontosabb tulajdonságait.
Bemutató megtekintése
Örömmel tölt el bennünket hogy bemutathatjuk épülő lakóparkunkat! Kollégánk szívesen válaszol bármely felmerülő kérdésre. Keressék bizalommal az alábbi elérhetőségeken, vagy a kapcsolat űrlap kitöltésével.

Apró Renáta
Értékesítő kolléga