
A feltüntetett bruttó árak tartalmazzák az áfát.
Lakás B9
Csillagfény Lakópark

Eladó egy világos, erkélyes új ingatlan Kaposváron. A fürdőszoba káddal és zuhanyzóval, valamint okos bojlerrel felszerelt, emellett külön mosdó biztosítja a kényelmet. A multi klíma rendszer és a minőségi szigetelés egész évben gondoskodik az ideális hőmérsékletről.
| Szint | Helyiség | Mért terület |
|---|---|---|
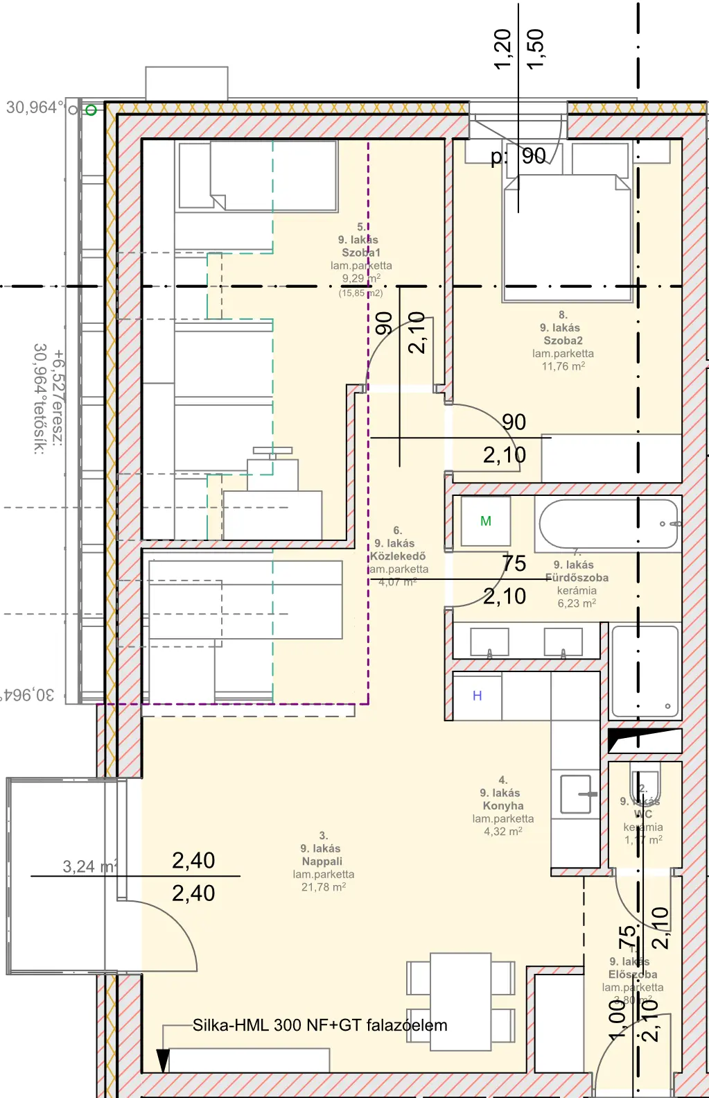
| 2. szint | Előszoba | 3,80 ㎡ |
| 2. szint | WC | 1,17 ㎡ |
| 2. szint | Nappali | 21,78 ㎡ |
| 2. szint | Konyha | 4,32 ㎡ |
| 2. szint | Közlekedő | 4,07 ㎡ |
| 2. szint | Fürdőszoba | 6,23 ㎡ |
| 2. szint | Szoba 1 | 9,29 ㎡ |
| 2. szint | Szoba 2 | 11,76 ㎡ |
Össz terület:
62,42 ㎡ (nettó)
75,24 ㎡ (bruttó)
Ár:
58,82 M Ft
Lakásokhoz opcionálisan vásárolható 3㎡-es tároló
1 350 000 Ft-os áronLakásokhoz opcionálisan vásárolható saját parkolóhely
1 530 000 Ft-os áronLakásokhoz opcionálisan elektromos autó töltőállomás kiépítése igényelhető - egyedi ajánlat alapján
Ez a lakás elérhető
→ ugrás a kapcsolatfelvételhezTovábbi lakások
Ismerje meg a Csillagfény Lakópark egyedi adottságait, valamint lakásaink legfontosabb tulajdonságait.
Bemutató megtekintése
Örömmel tölt el bennünket hogy bemutathatjuk épülő lakóparkunkat! Kollégánk szívesen válaszol bármely felmerülő kérdésre. Keressék bizalommal az alábbi elérhetőségeken, vagy a kapcsolat űrlap kitöltésével.

Apró Renáta
Értékesítő kolléga